Дизайнерская мебель
для дома, работы и отдыха
Режим работы:
пн-вс: 08.30 - 20.00
Заказать звонок
Контактная информация
Центр дизайна Art Play, г. Москва, ул. Нижняя Сыромятническая д. 10 стр. 2
Мягкая мебель в гостиной — как правильно расставить
26.04.2024
12
Алена Иванова
Менеджер

Мягкая мебель в гостиной — зона привлечения внимания. Диваны и кресла создают объем, поэтому интерьер строится вокруг них.

Новый материал от дизайнеров Top concept знакомит с такими нюансами, как:

  • Выбор месторасположения для диванов, кресел в зависимости от планировки;
  • Базовые схемы расстановки мебели;
  • Создание гармонии по стилю и цвету;
  • Особенности декора.

Советы взяты из практики, поэтому пригодятся при очередной перестановке или при глобальном обновлении интерьера!

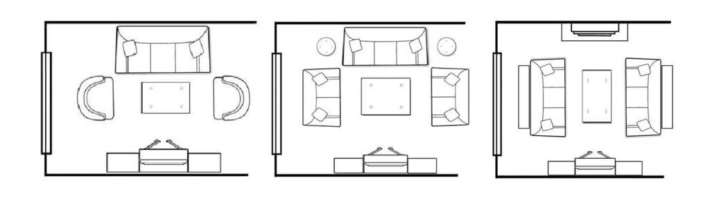
Размещение основных элементов мягкой мебели

Расстановка мебели в комнате требует соблюдения визуального баланса. За счет этого интерьер выглядит целостно, гармонично и не перегружено.

Дизайнеры называют три схемы размещения мебели:

  • Симметричная;
  • Ассиметричная;
  • Круговая.

Симметричная схема

Симметричная схема размещения мебели — удел консерваторов, ценящих размеренность, спокойствие и порядок. Так считают психологи.

Схема подходит для квадратных и прямоугольных гостиных площадью 19 м2 и больше. На воображаемой оси ставится центральный элемент (например, диван). От него на равном расстоянии другая мебель — парные кресла или разные, но схожие по габаритам и силуэту предметы. Если не соблюдать отступы, фокус внимания сдвигается и равновесие рушится.

Симметричная схема расстановки мебели

Расстановка мебели в гостиной по симметричной схеме подходит к классическому стилю интерьера. Уместна в стилях: ар-деко, эклектике, этнике. Этот способ формирования обстановки снижает визуальный шум и избавляет от ощущения хаоса и дисбаланса.

Симметрия — не значит скука. Чтобы оживить интерьер и добавить в него динамики используются контрастные сочетания, объемные фактуры. Вместо геометричного прямого дивана подойдет угловой, округлый.

Диван в гостиной по симметричной схеме

Асимметричная схема

Асимметричная схема подходит для гостиных нестандартной планировки. Это удачный вариант для комнат с нишами, выступами, колоннами.

Асимметричное размещение мебели дает место для экспериментов. Так чаще создаются современные интерьеры — минимализм, лофт, хай-тек и другие.

Суть способа состоит в смещении визуального центра комнаты. Он сдвигается к стене, к диагонали и т.д. Крупные предметы группируются с мелкими, например, рядом с мягкой зоной обнаруживается приметная ваза или акцентная картина.

Серый диван в интерьере гостиной по ассиметричной схеме

Если в интерьере яркая или габаритная мягкая мебель, диваны и кресла ставятся ближе к центру или на нейтральном фоне. Эти приемы визуально уменьшают объем композиции и добавляют воздуха в комнату.

Для создания асимметричного баланса подходит угловой диван, мебель разного размера. Чем больше непохожесть, тем сильнее визуальный эффект.

Круговой способ

Круговой способ расстановки мебели создает в гостиной зоны комфортного общения. В середине комнаты «рисуется» невидимая окружность. В её центре обозначается фокусная точка, вокруг которой мебель расставляется по замкнутой линии. Хотя схема и называется круговой, предметы интерьера могут формировать квадрат или прямоугольник.

Расстановка диванов в гостиной по круговой схеме

Гармония цветов и стилей: как расставить мебель разной палитры

Решить, как расставить мебель разных цветов и стилей можно, руководствуясь общими правилами:

  1. У разных по направлению и оформлению предметов должно быть что-то общее. Например, включения цвета, орнамент, фактура;
  2. Яркое и акцентное лучше ставить на нейтральном фоне;
  3. Количество цветов в интерьере — не больше 3 (1 основной, 1-2 дополнительных). Соотношение в процентном выражении 60/30/10.

Модные тенденции приветствуют вольность в выборе цвета мягкой мебели. Нейтральный диван и яркие кресла и пуфы — обычное явление. Но, чтобы такое сочетание было гармоничным, лучше отказаться от насыщенных красок в пользу приглушенных, пастельных тонов.

Угловой диван Elliot с пуфом с подушками пастельных тонов

Почему диван не должен выбиваться из основной цветовой темы интерьера?

Диван может быть единственным предметом, выполненным в том или ином цвете. Но, даже при этом он должен гармонировать по колористике с другой обстановкой:

  • Мягкая мебель нейтральных оттенков (белый, черный, серый, коричневый) хорошо сочетается между собой и с яркими цветами;
  • Зеленый диван и кресла гармонируют с природными тонами;
  • Энергичные цвета (красный, оранжевый, желтый) лучше сочетаются с нейтральными;
  • Синий и голубой идеальны для монохромных интерьеров, дружат с бежевым, горчичным.

В интерьере гостиной допустимо сочетать не только цвета, но и стили (в идеале не более 2-х). Это модно и оригинально, но только при условии правильного подбора мебели.

Как работать с двумя стилями в одном помещении без дизайнера?

В интерьере лучше не объединять больше двух стилей. Один главный, другой на второстепенных ролях. Исключение составляет, разве что, фьюжн. Важно добиться правильных переходов, когда один стиль плавно перетекает в другой.

Нельзя разбавлять интерьер единственным предметом в другом стиле. Нужная хотя быть пара. Например, в мягкую зону к креслу придется подобрать столик в том же стиле.

Проще объединять разные стили в монохромном интерьере. Выдержанная в единой гамме обстановка смотрится целостнее. Другие способы создать визуальную гармонию — выбрать мебель похожих силуэтов или подобрать декоративные подушки и плед к шторам и другому текстилю в гостиной.

Смешение стилей в интерьере

Расстановка мебели по функциональным зонам

Зонирование возможно даже в небольших гостиных. В комнате предусматриваются такие зоны:

  • Отдыха/приема гостей;
  • Медиазона;
  • Дополнительное спальное место.

А еще в гостиной создаются столовая, рабочая и игровая зоны. Но, мягкая мебель в таких функциональных уголках редкость, поэтому останавливаться на них подробнее не будем.

Зона отдыха

Зона отдыха в гостиной занимает в среднем это 9-10 кв. м. Обычно в этой области располагается диван среднего размера и пара кресел. Оптимальное расстояние между предметами интерьера 1 м. Этого достаточно, чтобы хозяева и гости видели друг друга во время беседы.

Интерьер просторной гостиной

В небольшой комнате массивная мебель в зоне отдыха заменяется компактной, чтобы избежать ощущения тесноты. Для просторной, наоборот, часто выбирают габаритные П-образные и округлые модели. Кроме дивана и кресел, must have в зоне отдыха — журнальный столик. Минимальное расстояние между ним и мягкой мебелью 45-50 см. Если важно, чтобы удобно было не только сидеть, но и ходить вокруг стола, его нужно увеличить в 2 раза, до 90-100 см.

Мебель для зоны приема гостей должна быть удобной и вместительной. Подойдет модульный диван. Передвигая блоки, можно менять количество и расположение посадочных мест.

Зона с домашним кинотеатром или телевизором

При планировке медиазоны в гостиной важны привычки членов семьи и общие требования к эргономике. Если просмотр телевизора — одна из главных форм досуга, понадобится вместительная мебель. Учитывайте, что на 1 человека приходится 60-80 см ширины дивана. Соответственно, для семьи из 3 человек потребуется минимум 1,8-2,4 м.

Расстояние от мебели до экрана зависит от диагонали. Чем она больше, тем дальше нужно расположить телевизор от мягкой зоны. Например:

  • 26” — 1-2 метра;
  • 37” — 1,4-2,8 метра;
  • 42” — 1,6-3,2 метра;
  • 50” — 1,8-3,6 метра;
  • 55” — 2,1-4,2 метра.
расстояние от дивана до телевизора

Соблюдение расстояния от дивана до телевизора нужно не только для удобства, но и для здоровья глаз.

Дополнительное спальное место

Если в гостиной диван — дополнительное спальное место, нужно уделить внимание механизму раскладывания и наличию достаточного пространства для этого.

Механизмы трансформации бывают раскладные, выдвижные, раздвижные. У последних дополнительные секции выдвигаются вперед, поэтому перед диваном должно хватать свободного места. Раскладные модели компактнее. Но им для трансформации нужно пространство позади спинки.

Важно: большинство механизмов трансформации стойко переносят ежедневное раскладывание и сборку, но есть и гостевые модели, не предназначенные для постоянного использования (например, «Седафлекс»). Для основного спального места такие варианты не подходят.

Учет особенностей пространства

Какая нужна мягкая мебель в гостиной и как ее расставить, зависит от планировки. Меньше проблем с выбором места размещения в квадратных комнатах. В других случаях придется проявлять фантазию.

Несколько лайфхаков для часто встречающихся вариантов:

  1. Узкую и вытянутую гостиную стоит разделить на функциональные зоны. Оптимальная схема для комнаты «вагонного» типа ассиметричная. Крупную мебель нельзя ставить у длинной стены — это сузит помещение.
  2. Массивный диван и кресла неуместны. Лучше выбрать несколько небольших и визуально разгрузить обстановку. Легче смотрится интерьер с мебелью округлого силуэта.
  3. Важна функциональность мягкой зоны. Например, если в диване будет ящик для хранения, не придется покупать тумбу.
  4. В маленькой гостиной придется проявить фантазию. Главное, что нужно учитывать — пропорциональность мебели. Не покупайте диван, который займет 50% площади помещения. Учитывайте высоту потолков: если она небольшая, понадобится невысокая мягкая мебель.
    В маленькой комнате уместна мебель с округлыми формами. Цвет пастельный, без принтов и ярких элементов. От валиков и других декоративных элементов лучше отказаться — они «съедают» пространство. Подойдет модель на небольших ножках. Она визуально легче.
  5. Не рекомендуется размещать мягкую мебель у окна. Это перекроет поток естественного света + обивка быстрее выгорит.
  6. Нестандартная форма гостиной ограничивает. Если разместить диван и кресла вдоль «необычной» стены, это подчеркнет особенности планировки. При этом мягкая мебель станет центром, вокруг которого будет создаваться обстановка. Другие варианты расположения — диван в середине комнаты или мебель повторяет неровности стен. При достаточной площади гостиной такие решения будут смотреться оригинально и легко.

Декоративные элементы и аксессуары

Современная мягкая мебель — кресла, диваны и даже пуфы — минималистична. Обивка без узоров и рисунков, металлические и деревянные элементы редко используются для оформления.

Декор выполняется:

  • Молдингом. Это декоративная накладка, имитирующая шляпки гвоздиков. Подходит для оформления мебели в направлениях, тяготеющих к роскоши и величию («Классика», «Барокко»), и современных стилях («Лофт»);
  • Кант. Выполняется той же тканью, что и обивка. Для оформления кожаных диванов и кресел не подходит. Несмотря на лаконичность это объемное украшение смотрится интересно;
  • Отстрочка. Бывает одинарной и двойной, выполняется в тон с обивкой, темнее или светлее. Чтобы мебель выглядела оригинальнее, используются контрастные нити. Такой декор часто применяется на кожаной обивке и тканях без выраженной текстуры.

В качестве декоративного дополнения дивана используются подушки и пледы. Хотя в лаконичных минималистичных стилях не всегда уместны.

В комплекте с диваном часто идут подушки в оттенках обивки. Хотя некоторые называют такое решение банальным и скучным. Модели из комплекта выполняют и утилитарную функцию — с их помощью регулируется угол наклона спинки.

Декоративные подушки для современного дивана

Выбирать декоративные подушки нужно по правилам:

  • Подушка в цветах обивки обычно заметно темнее или светлее. Это создает необходимый объем;
  • Контраст обивки и подушек выглядит эффектно. Например, оранжевые подушки на синем диване или красные на зеленом играют роль акцентов;
  • Можно поиграть с фактурами и принтами. Разные ткани, сочетание однотонных подушек с наволочками с анималистическим или растительным орнаментом смотрятся динамичнее и живее.

К вопросу о количестве подушек. Здесь зависит от личных предпочтений и размера мебели. На средний диван нужно от 2 до 10, для кресла — 1-3 подушки.

Декоративные подушки на диване

Главным ориентиром при выборе декора считается обивка. Другие варианты согласования — со шторами, ковром и текстилем.

Чтобы обстановка в гостиной была уютной и комфортной, нужно правильно расположить мягкую мебель с учетом функциональных зон, цвета и стиля. Важно подобрать декор, который подчеркнет эстетику интерьера.

Как заказать мебель от бренда Top concept

Понравились товары Top concept? Дарим скидку на первую покупку до 5000 рублей! Для быстрой консультации пишите в онлайн-чат ведущему менеджеру.

Товары

под заказ 40 дней
6 400 руб.
7 325 руб.
под заказ
7 450 руб.
8 525 руб.
под заказ 40 дней
8 225 руб.
11 750 руб.
В наличии
19 900 руб.
21 900 руб.
В наличии
7 350 руб.
8 400 руб.
под заказ
18 396 руб.
26 280 руб.
Каталог тканей