Дизайнерская мебель
для дома, работы и отдыха
Режим работы:
пн-вс: 08.30 - 20.00
Заказать звонок
Контактная информация
Центр дизайна Art Play, г. Москва, ул. Нижняя Сыромятническая д. 10 стр. 2
Идеальная обеденная зона: как оформить пространство
07.06.2024
11
Алена Иванова
Менеджер

Обеденная зона может заменять рабочее место или стать уголком для хобби. Учитывая такую функциональность кухни или столовой, к оформлению помещения нужно подходить осознанно.

Редакция Top сoncept совместно с дизайнерами освещает тему главных аспектов организации пространства кухни:

  • Выбору и размещению мебели в обеденной зоне
  • Цветовой гамме
  • Правильному освещению
  • Декору и аксессуарам
  • Модным тенденциям

Советы профессионалов помогут превратить обеденную зону в комфортное место для приятного отдыха семьи и гостей!

Выбор мебели для обеденной зоны

Обеденная зона кухни, гостиной в представлении большинства — стол, стулья или иногда кресла. Это базовый вариант, есть и другие. Например, поставить вместо стола барную стойку, а вместо стульев скамью или диванчик.

Как выбрать стол

На выбор мебели влияет многое. В первую очередь размеры комнаты и планировка. На просторной кухне найдется место столу с любой столешницей, даже с круглой.

Для комнаты средних размеров чаще покупают квадратные или прямоугольные модели. Они вместительнее, не загромождают пространство (устанавливаются даже в углу комнаты).

Для кухни и гостиной любого размера подойдут столы раскладные (трансформеры) — когда приходят гости, место для двоих становится просторным и вместительным.

Как выбрать мебель для сидения

Зона обеденного стола дополняется стульями схожего дизайна. Если стол круглый, то и у мебели для сидения мягкие, плавные очертания. Одинаковыми могут быть материалы или цветовая гамма. Подробно о выборе обеденных стульев, мы писали в исчерпывающем гайде.

Вывод

Обеденная зона оформляется в стиле интерьера, и на фоне богато декорированной классической мебели минималистичный стол смотрится простовато. Все же при обустройстве обеденной зоны во главе угла стоит вопрос удобства.

Если заменить табуреты на мягкие кресла, расслабиться за ужином после тяжелого дня будет проще. А мебель со скругленными краями поможет избежать случайных ударов об стол.

Не стоит забыть о функциональности пространства:

  1. Дополнительная опция у столов — вращающийся центр, как у модели Wilson, или регулировка по высоте.
  2. У кресел и стульев — механизмы поворота, возврата, как в коллекции Molly или Hunt.
  3. Если обычно вы пользуетесь парой стульев, но в доме часто бывают гости, выбирайте складные или штабелируемые модели.

Правильное размещение мебели в обеденной зоне

Зона обеденного стола чаще не пересекается с рабочей. Хотя на кухнях с барной стойкой и помещениях небольшого размера, нетиповой планировки возможны исключения.

Центр комнаты

Удачное место для стола в центре комнаты. Но, это решение для кухонь, гостиных от 12 м². Разместить таким образом можно любой стол, в том числе с круглой столешницей — смотреться будет гармонично.

Для экономии места стол ставят у стены. В узкой комнате длинной частью столешницы. Минус этого варианта: рассадка только с трех сторон, одна остается незадействованной. Кому-то из сидящих открывается вид из окна, а кому-то приходится любоваться стеной.

Стулья Woddy для обеденной зоны в гостиной в наличии

Угловое расположение

Обеденная группа в углу — еще один вариант компактного размещения. Стол занимает минимум места, при этом используются все 4 стороны. Часто такая обеденная зона с диваном — прямым или угловым. Модели с отсеками для хранения помогают разгрузить интерьер и спрятать вещи, которые используются редко. Раскладные форматы дают дополнительное спальное место.

При таком размещении потребуются дополнительные источники света — в углу может быть темно. Еще один минус в том, что сидящим по краям дивана приходится вставать, чтобы выпустить тех, кто расположился в середине.

Рядом с окном

Обеденная зона для кухни у окна — удачный вариант для помещений 7-12 м². За завтраком и ужином можно любоваться улицей или цветами на подоконнике. За счет естественного света создается уютная и теплая обстановка. Но, если окно выходит на лоджию, из него открывается неприглядный вид или предусмотрен широкий подоконник, стоит поискать другое место для стола.

Есть и другие способы, как оформить обеденную зону. Например, ее можно разместить в нише, эркере, на подиуме.

Цветовая гамма и материалы для обеденной зоны: создание гармоничного и стильного интерьера

Дизайн обеденной зоны должен подходить к окружению. Поэтому при выборе стола и стульев важны стены, пол, потолок, остальная мебель.

Начнем с беспроигрышных вариантов. На кухне и в гостиной уместны стол и стулья нейтральных цветов:

  • белый
  • черный
  • коричневый
  • серый

Эти оттенки гарантированно вливаются в фон для ярких акцентов и не перетягивают на себя внимание.

Если нужно, чтобы обеденная группа сливалась с обстановкой, выбирайте мебель в цветах интерьера или близких оттенках. Например, красный дружит с оранжевым и сиреневым, а на фоне голубого кухонного гарнитура гармонично смотрится синий или зеленый стол.

Чтобы обеденная зона в зале выделялась, выбирайте контрастные сочетания. Например, красный и зеленый, оранжевый и синий, желтый и фиолетовый.

Учитывать нужно не только сам цвет, но и светлоту. Мебель нежных пастельных тонов визуально меньше. Такое изящество особенно пригодится в маленькой комнате. Темный стол и стулья кажутся больше. Их лучше покупать для просторных кухонь и гостиных.

На выбор цвета обеденной группы влияет естественное освещение комнаты. Для солнечной стороны подойдут холодные тона — зеленый, синий, фиолетовый. Для теневой нужны желтый, оранжевый, красный. Они добавят теплоты.

Кстати: психологи утверждают, что теплые тона усиливают аппетит, а холодные наоборот помогают быстрее насытиться.

При выборе цвета можно ориентироваться на модные тенденции. В тренде нейтральные и природные оттенки.

Кухня в природных оттенках дерева с яркими акцентными зелеными стульями

Идеальное освещение обеденной зоны: создание атмосферы и функциональности

Освещение в обеденной зоне помогает создать комфортную, домашнюю атмосферу в месте приема пищи. Оно визуально выделяет эту часть кухни, тем самым делит пространство на части.

Интерьер обеденной зоны станет уютным, если придерживаться правил:

  • Свет не должен быть раздражающим, ярким
  • Цветовая температура ламп — теплая или нейтральная
  • Светильники лучше размещать на расстоянии 80 см от столешницы или 10-15 см от головы сидящего человека
  • Если в обеденной зоне предусмотрено 2-3 осветительных прибора, желательно, чтобы у каждого был выключатель. Так можно «настраивать» уровень освещенности и экономить электроэнергию.

Для освещения обеденной зоны подходят светильники на подвесе, бра, торшеры, люстры. Размеры осветительных приборов пропорциональны столешнице. По габаритам меньше минимум на 30 см.

Хорошо, когда осветительные приборы перекликаются со столом по форме. Например, к округлой столешнице подойдет светильник с мягкими, изогнутыми очертаниями, а квадратную дополнит геометричный подвес.

Что касается дизайна, замысловатые решения требуют аккуратности. Они подходят не ко всем стилям. К тому же мыть люстру с большим количеством подвесок или светильник с рельефной поверхностью сложно.

Декор для обеденной зоны: добавление стиля и индивидуальности

Декор и аксессуары добавляют настроения в интерьер. Эти мелочи подчеркивают индивидуальность — семейность, любовь к путешествиям и открытость миру, оригинальность.

Популярный вариант — картина. Чаще используются изображения еды, репродукции. Не обязательно покупать картину модного художника. Попробуйте себя в роли живописца или попросите детей нарисовать что-то.

В стилях прованс и кантри для оформления обеденной зоны в зале используются декоративные тарелки. Если стены темные или яркие, подойдет белая посуда. Для светлого фона нужна яркая, необычная.

Настенные часы такие привычные, но и они могут быть небанальным украшением. Например, если выбрать модель большого размера или необычного дизайна. Интересный вариант — разместить несколько часов в ретро-стиле.

Обеденная зона в зале станет местом демонстрации личной коллекции. Чего угодно — монет, марок, шляпок, фигурок.

Над столом можно повесить открытые полки. Подойдут для посуды, цветов, предметов личной коллекции. Если назначение полок больше декоративное, чем функциональное, не нужно ставить на них много всего. Это создает визуальный шум и усложняет уборку.

Стильно смотрится в обеденной зоне большое зеркало. Оно добавляет света и визуально расширяет границы помещения. Экстравагантное решение, но уместное.

столы и стулья для кухни

Организация пространства обеденной зоны: максимизация комфорта и функциональности

Чтобы создать комфортное пространство, нужно:

  • Позаботиться об освещении. Чем больше стол, тем больше осветительных приборов нужно предусмотреть;
  • Спланировать проходы. Обеденную зону должно отделять от рабочей расстояние в 1,2-2 метра. Если меньше, неудобно передвигаться, если больше, хозяйке придется устраивать забеги от стола к столу;
  • Выбирайте правильный стол. На одного человека приходится 60-70 см длины стола и 40-45 см глубины. Зная это, легко рассчитать нужные размеры по количеству членов семьи;
  • Выбирайте правильные стулья. По габаритам: 40-45 см глубиной, высотой на 25-30 см ниже столешницы. Дизайн в стиле интерьера. Подробнее о том, как подобрать стул в материале «Яркое преображение: как стулья могут преобразить вашу столовую зону».

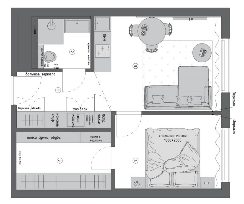
Нарисуйте план комнаты с меблировкой — это позволит экспериментировать с местом расположения обеденной зоны и найти наилучшее решение!

План расстановки мебели на кухне и в комнате для правильной организации обеденной зоны

Тренды в оформлении обеденных зон: вдохновение для стильного интерьера

Общие тенденции в оформлении интерьеров — использование натуральных материалов, яркие, акцентные цвета. Что касается именно обеденных зон:

  • Декор: использование растений, арт-объектов (картин, постеров, фотографий), ковров неправильной формы на полу;
  • Функциональность: раздвижные столы, крутящиеся, возвратные механизмы у стульев;
  • Поверхности: хромированные поверхности постепенно вытесняют латунь и медь;
  • Мебель: скамейки, вместо стульев, оригинальные кресла, миниатюрные столы с механизмами трансформации.

Обеденная зона — не только уютная, но и функциональная часть пространства кухни, гостиной. Выбирайте правильную мебель, чтобы создать по-домашнему уютную атмосферу для приятного общения, работы или учебы.

В интернет-магазине Top concept представлено более 300 моделей обеденных стульев и 200+ моделей столов. В наличии и под заказ мебель в стилях классика, минимализм, лофт, сканди, модерн, хай-тек, прованс.

Закажите звонок с сайта или напишите нам в WhatsApp.


Товары

Распродано
84 900 руб.
94 900 руб.
под заказ 40 дней
7 625 руб.
8 725 руб.
под заказ 40 дней
7 900 руб.
9 175 руб.
Финальная цена
В наличии
4 900 руб.
6 550 руб.
под заказ 40 дней
8 225 руб.
11 750 руб.
Каталог тканей